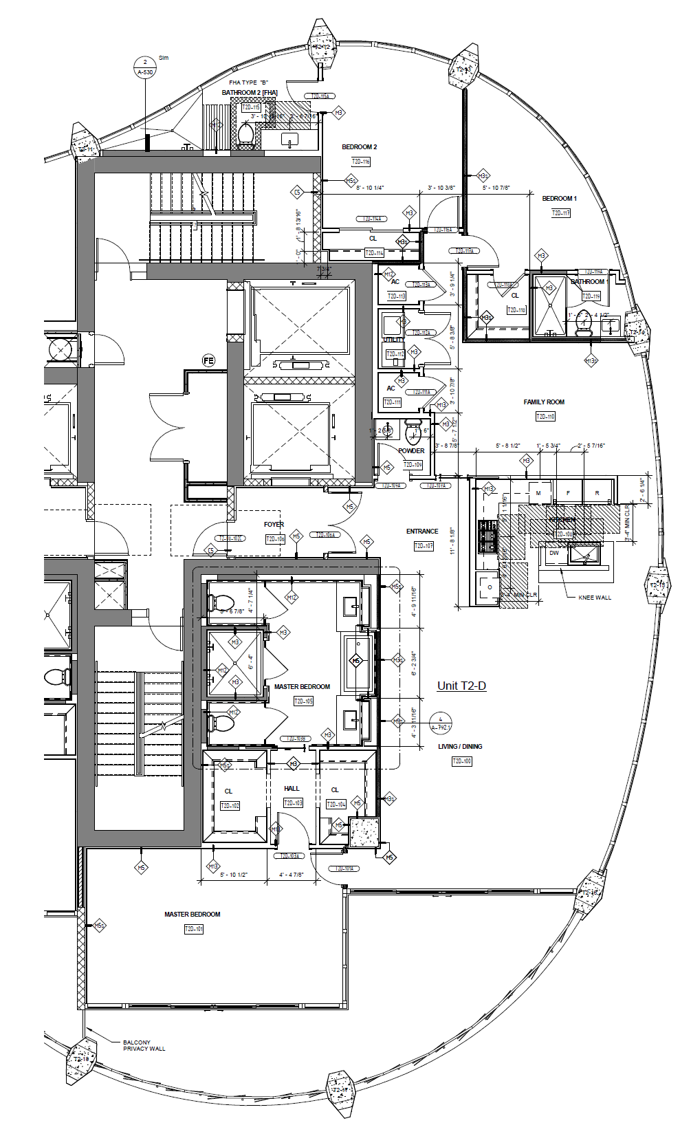
Custom and Typical Unit Modeling
This luxurious project had numerous custom units, which I helped model, document and organize with-in our enlarged plans series.
Details
This project came with a lot of unique site and unit details I was able to help work out and provide assistance for the field work.
RFI's
With big projects comes numerous RFI's, I assisted on finding answers and responding to the many requests from the site.
