Indian Creek Schematic Design
Indian Creek was a project that was on and off again. I helped in the process of submitting to the design review board and design changes.
Rendering done by others.
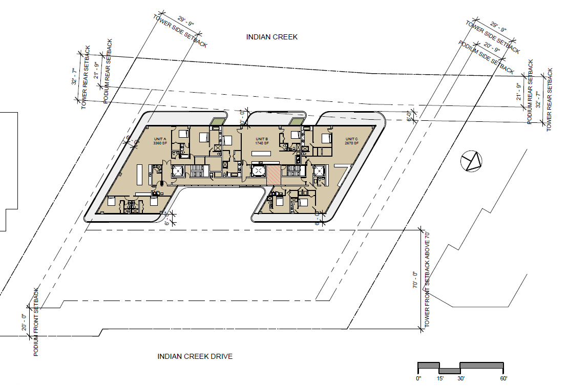
Floor and unit design
This project went through many alterations, floor plates were changed many times over from comments by the City of Miami Beach. I worked on the alterations and designs through parts of the projects life span.
Zoning Calculations
The multiple alterations required new parking designs and FAR calculations, maximizing both as much as possible.
